Iniziati a metà settembre i lavori nello spazio verde tra corso Francia e via Bodina
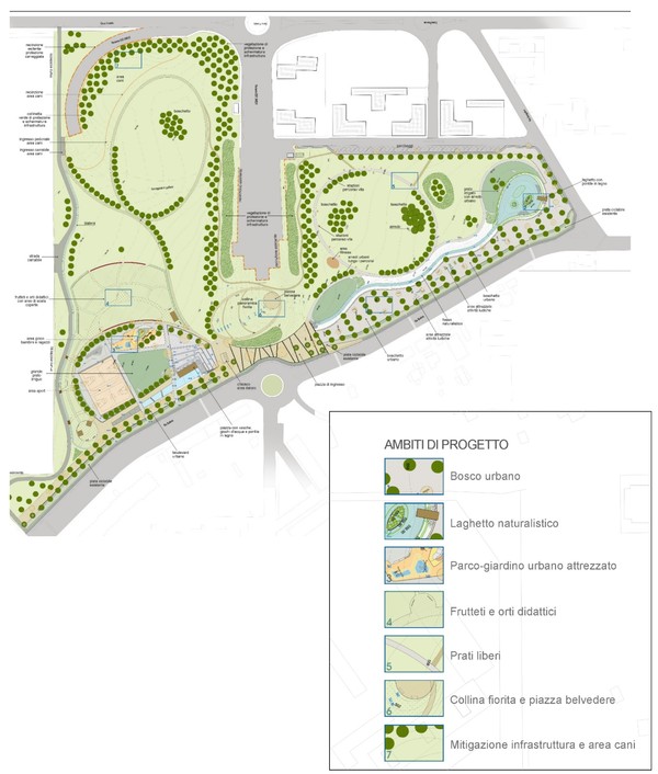
L’area verde di piazza D’Armi spazio verde residuo tra svincoli e quartieri nuovi della città, sotto cui passa la SS 705, finalmente vedrà una sistemazione organica e definitiva che mira a dotarlo di una copertura arborea, di percorsi ciclo pedonali, di attrezzature sportive e aree relax. Sull’intera area è prevista la piantumazione di oltre 400 nuovi alberi ad alto fusto tra cui querce, olmi, aceri, betulle, ginko biloba. L’area di circa 80 mila mq (8 Ha) verrà suddivisa come segue:
PARCO POLO URBANO – PARCO ATTREZZATO DI VIA BODINA: centrale, accessibile, immediatamente raggiungibile dai residenti limitrofi, controllato, illuminato, con attrezzature, pavimentazioni e arredi di livello cittadino e capace di attrarre, per la sua dimensione e infrastrutturazione, l’intera cittadinanza. (8.800 mq)
PARCO DEGLI ORTI E FRUTTETI: un’area dedicata a stimolare relazioni sociali e valorizzare i beni comuni caratterizzata da una tipologia di verde quasi familiare, di solito privata, riletta e implementata con percorsi e spazi pubblici coerenti con il potenziale di socialità che il “coltivare“ in città può innescare. (6700 mq)
PARCO NATURALE: un’area (suddivisa in Settore nord e Settore Sud dalla presenza della strada a scorrimento veloce) accessibile direttamente dalla città storica e configurata come grandi spazi aperti di prati e grandi alberature, polmone verde per la struttura urbana, con carattere naturale e percorsi segnati da alberature in filare con fruizione libera. (42.700 mq)
LAGHETTO NATURALISTICO E BOSCO URBANO: un’area a verde urbano a basso livello di attrezzatura che prevede la realizzazione di un laghetto naturalistico di circa 920 mq che riceve per gravità le acque di by-pass derivate dal torrente Gesso (intervento già previsto dal Comune di Cuneo, il quale provvederà a renderlo effettivo in linea coi tempi di realizzazione del progetto del parco) e convogliate a monte dell’attraversamento stradale della variante est-ovest prima con una bialera a cielo aperto, poi da un tratto intubato . (14.900 mq)
L’importo complessivo dell’intervento è di €. 3.155.000 finanziato per € 2.561.000 mediante fondi statali derivati dal decreto: “RIQUALIFICAZIONE URBANA E SICUREZZA DELLE PERIFERIE” e per €. 594.000 con fondi dell’amministrazione comunale di Cuneo. I lavori sono stati appaltati al raggruppamento di imprese composto dalle ditte Euroambiente srl (mandataria) e Balaclava s.r.l. .
Dallo studio 1AX che ha elaborato il progetto vincitore si legge: ” Un parco come polo Urbano: centrale, accessibile, immediatamente raggiungibile dai residenti limitrofi, controllato illuminato e con attrezzature, pavimentazioni e arredi di livello cittadino e capace di attrarre per la sua dimensione e infrastrutturazione l’intera cittadinanza. Un area dedicata a stimolare relazioni sociali e valorizzare beni comuni.”
I lavori dovrebbero durare un anno e mezzo con previsione di fine cantiere e inaugurazione per la primavera 2022.






